みつわ台総合病院

サービスガイドマップ

  • サービス付き高齢者向け住宅
  • リハビリ専門デイサービス
  • 訪問看護
  • 訪問介護
  • ケアプラン

居室案内

Aタイプ

Aタイプ

居室数:32戸
面積:20.73〜21.24m²

家賃
(北向き)64,000円
(南向き)66,000円
共益費
20,000円
生活支援サービス費
47,250円

Bタイプ

Bタイプ

居室数:12戸
面積:30.82〜31.05m²

家賃
(北向き)74,000円
(南向き)76,000円
共益費
20,000円
生活支援サービス費
47,250円

Cタイプ

Cタイプ

居室数:4戸
面積:30.36〜30.59m²

家賃
(北向き)84,000円
(南向き)86,000円
共益費
25,000円
生活支援サービス費
47,250円

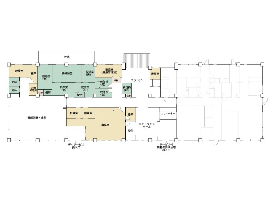
1F平面図

1階

2F-3F平面図

2階平面図

2階

3階平面図

3階

施設内ギャラリー

コンテンツ

  • サービス概要
  • 居室案内
  • 費用について
  • 入居の流れ

みっつの輪QUICK GUIDE

〒264-8510
千葉市若葉区若松町531-130

交通案内

  • メールでのお問い合わせ
  • TEL:043-290-0543
  • 高齢者向け住宅パンフ
  • みつわ台総合病院リハビリ奮闘記

ページの先頭へ